



Bethesda, Maryland
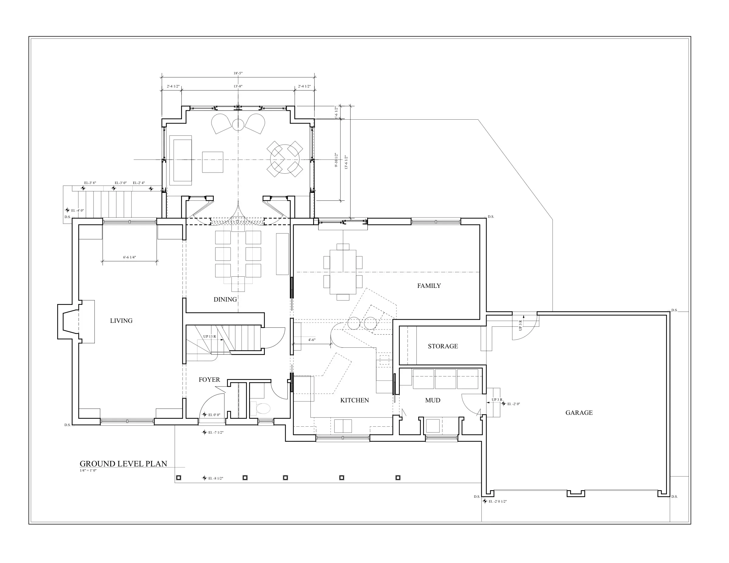
Work includes renovation of the first-floor kitchen, dining, and living areas. The kitchen is enlarged and combined with a breakfast area and seating group to provide a variety of visually connected family activity zones. Lighting is upgraded throughout the house, primarily to highlight the owner's collection of art.
Photography: Jane Wheatley