



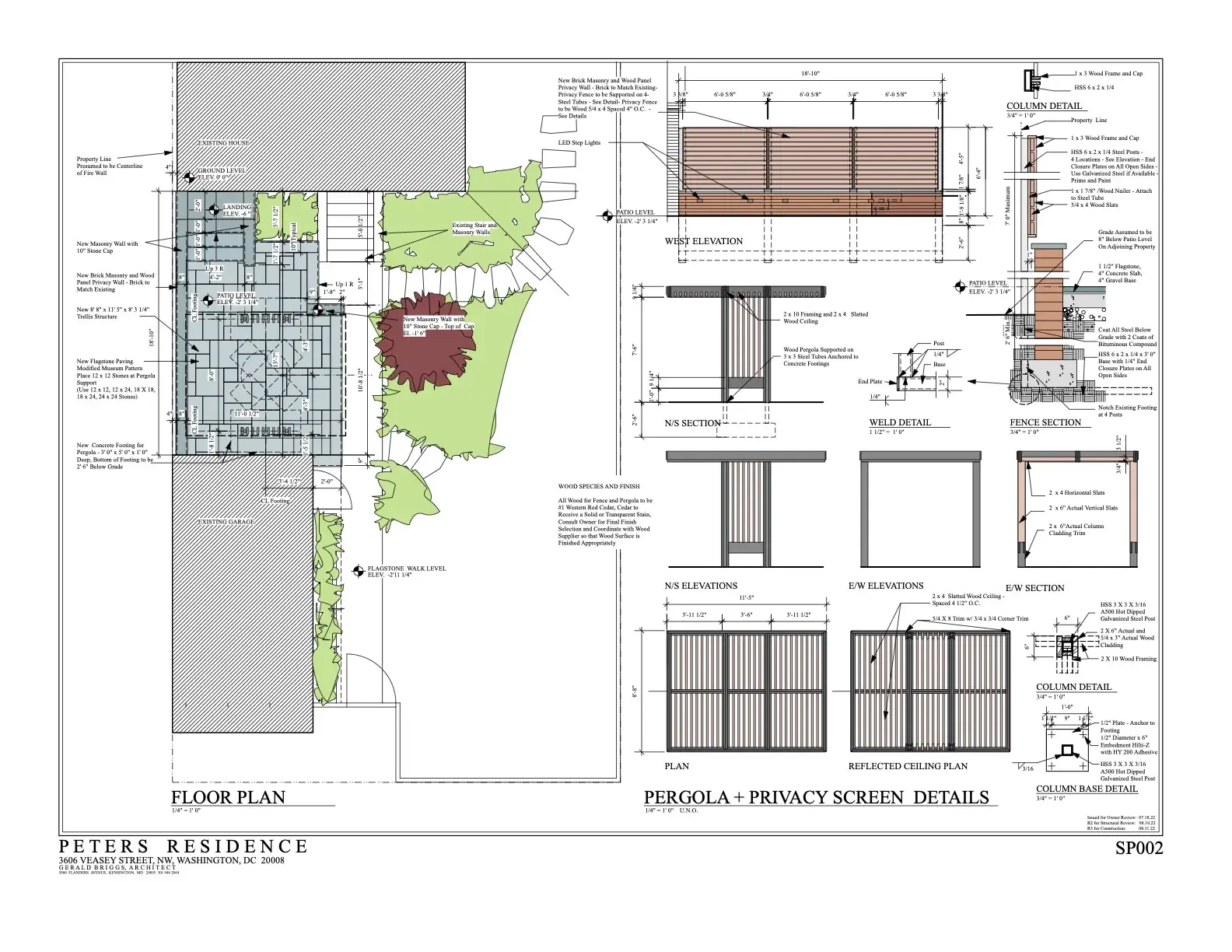
Washington, DC
Work includes reconstruction of a small patio, privacy screen, and stair. A new garden structure is placed on the patio to provide a shaded seating area for family activities and entertaining. Materials include Pennsylvania Bluestone, brick to match the adjacent structure, and stained cedar.