








La Mesa, California
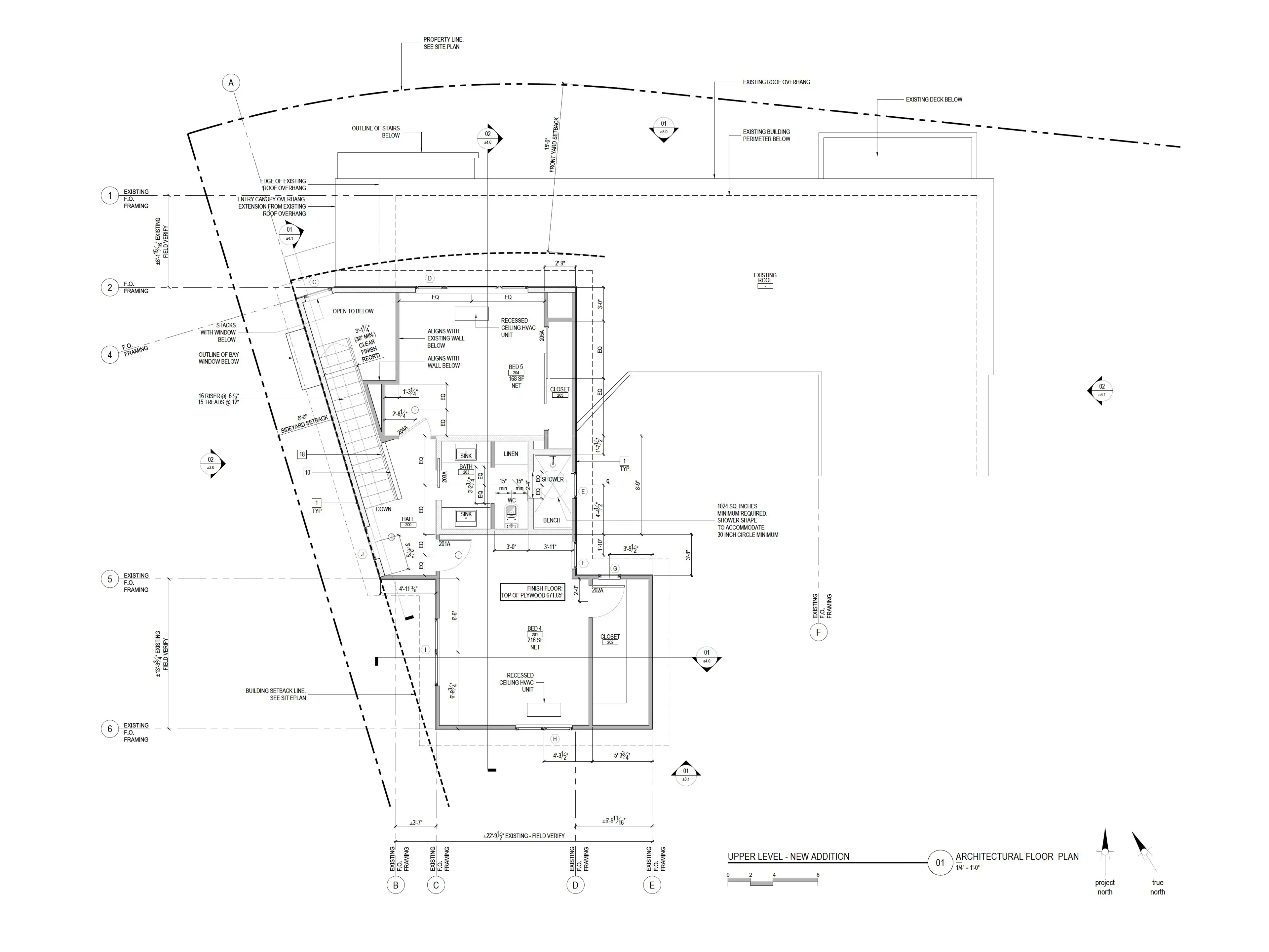
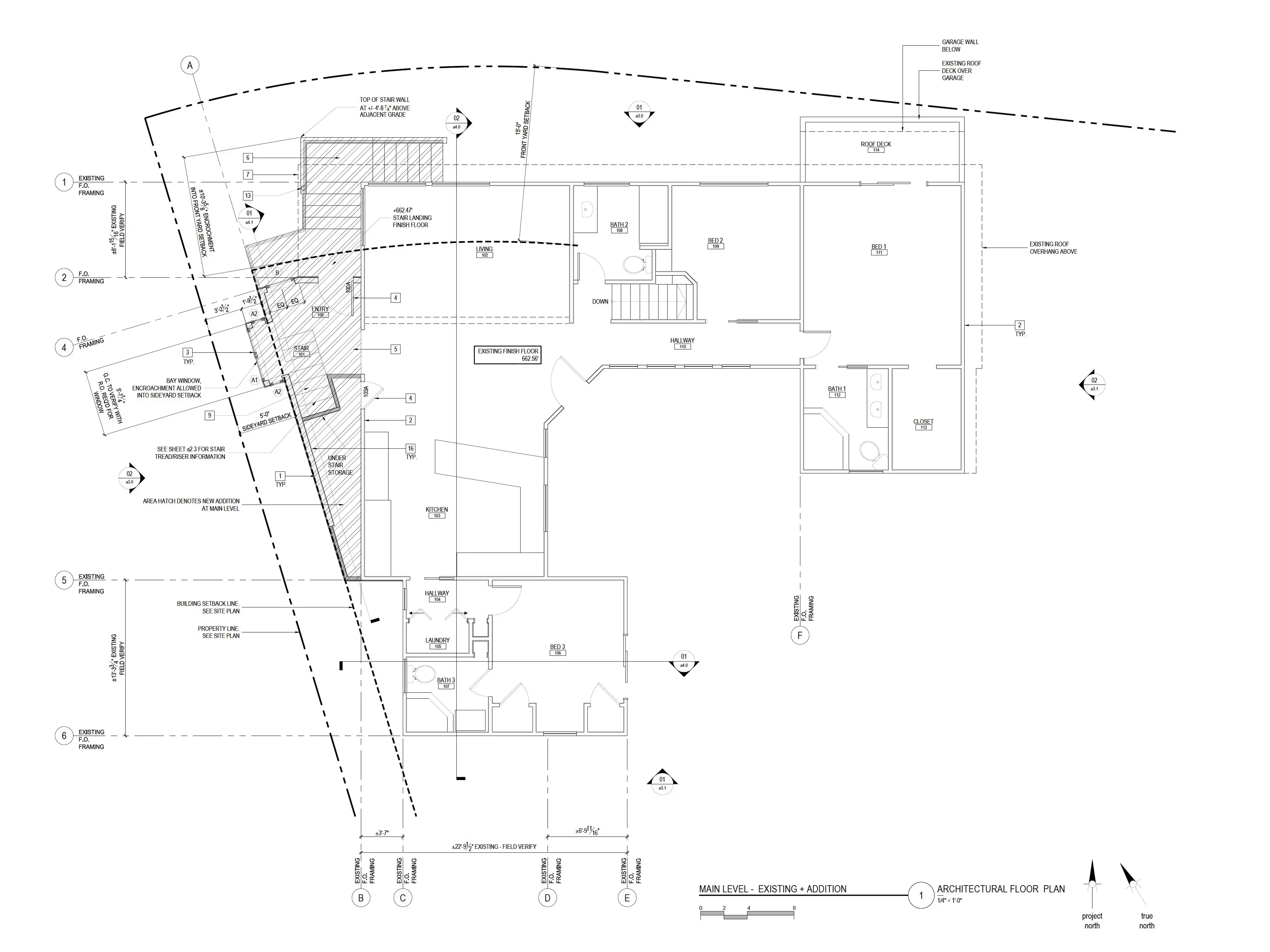
Work includes an extension of the first floor and new second floor addition. The first floor contains a new primary entrance and connecting stair. Two bedrooms and a shared bath are located on the second floor. Wall surfaces in the public areas on the first floor are refinished and modernized. Cabinet doors in the open kitchen are sanded and painted or replaced with new white oak fronts. Exterior forms reflect an informal mid-century modern aesthetic. Materials are stucco and fiber-cement siding.
Architect of Record: ASQUARED